Vanity Combo Cabinets – Drop-In Sink Clearance
What is the clearance for a drop-in sink in the vanity combo cabinets (VSBDR / VSBDL)?
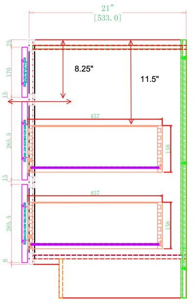
There are two important measurements to consider, depending on what you are trying to fit above the drawer:
- True drawer clearance:
- Approximately 8.25"
- This is the maximum clearance for items that might be taller than the drawer box itself.
- Total vertical clearance (drawer top to cabinet top):
- Approximately 11.5"
- This is the full space available above the top drawer box, which is often relevant for sink bowls and plumbing components.
📌 What this means:
If a drop-in sink or plumbing component extends below the countertop:
- Anything extending below 8.25" may interfere with the items in the drawer box
- Items up to 11.5" may fit above the drawer, depending on sink shape and plumbing layout
📎 Refer to the diagram for a visual reference of drawer and sink clearance.
![6
15
265. 5
15
265. 5
170
25.
8.25"
457
457
[533.0]
21"
11.5"
158
158](https://education.kcdus.com/hs-fs/hubfs/undefined-Jan-26-2026-08-56-53-3504-PM.png?width=400&height=626&name=undefined-Jan-26-2026-08-56-53-3504-PM.png)